首頁公司新聞 閥門專業知識-低阻力倒流防止器

閥門專業知識-低阻力倒流防止器

1、概述  倒流污染是導致城鄉供水管網水質二次污染的重要原因之一。倒流防止器作為保護供水水質安全的有效設施,正在得到越來越廣泛的重視和推廣使用。低阻力倒流防止器是一種能耗低、安全性好,能夠格限定管道中的水只能單向流動的新型閥門組合裝置。低阻力倒流防止器主要用于市政供水管網與用戶管網之間,或者生活水與消防水、空調水、綠化水等不同水質系統之間的有效隔斷。因此,倒流防止器也常被稱為防污隔斷閥。2、結構特

1、概述

  倒流污染是導致城鄉供水管網水質二次污染的重要原因之一。倒流防止器作為保護供水水質安全的有效設施,正在得到越來越廣泛的重視和推廣使用。低阻力倒流防止器是一種能耗低、安全性好,能夠格限定管道中的水只能單向流動的新型閥門組合裝置。低阻力倒流防止器主要用于市政供水管網與用戶管網之間,或者生活水與消防水、空調水、綠化水等不同水質系統之間的有效隔斷。因此,倒流防止器也常被稱為防污隔斷閥。

2、結構特性

  低阻力倒流防止器是由兩個相互獨立的彈簧助閉彈性密封止回閥和中間減壓腔內一個獨立的水力差動式安全泄水閥(排水器) 構成的一種閥門裝置(圖1) 。這種裝置具有結構緊湊,安全可靠,水頭損失低,維修周期長等特點。閥門端部可采用法蘭連接﹑螺紋連接和卡箍連接。小于DN50宜采用螺紋連接,大于和等于DN50宜采用法蘭連接或卡箍連接。

3、工作原理

  低阻力倒流防止器由于止回閥的局部水頭損失,中間腔內的壓力始終低于入水口的壓力。這個壓差驅使泄水閥處于關閉狀態,管路正常供水。在壓力異常時(即出口端壓力高于中間腔) ,即使兩個止回閥都不能反向密封,安全泄水閥也能自動開啟將倒流水泄空,并形成空氣隔斷,保證上游供水衛生與安全。

  當管網壓力正常時,水從進口經由兩個止回閥流向出口。由于一級止回閥的局部阻力使閥腔內的壓力略低于進口處壓力,而隔膜上的水壓則為進口處壓力,所以隔膜上的水壓大于隔膜下的水壓,安全泄水閥保持關閉狀態,這時管道內的水正常流動。當倒流防止器后面管路上的所有閥門都關閉時,水流處于靜止狀態。此時,若進口處壓力不變,閥腔內的水壓仍比進口處水壓略低,安全泄水閥仍處于關閉狀態。當倒流防止器后面的管道壓力P3升高,并超過供水壓力P1,即所謂背壓。這時如果二級止回閥沒有滲漏,則高壓水不會倒流至閥腔內,閥腔內仍保持正常流動時的壓力,所以泄水閥不動作排水。如果二級止回閥滲漏,閥腔內的壓力因滲漏而提高,安全泄水閥動作排水,減小高壓水流對一級止回閥的壓力,從而有效防止了后面的水再從一級止回閥倒流至前段管道。

  如果上游供水壓力P1下降,則控制安全泄水閥動作的隔膜上部的壓力也隨之下降,當進口壓力降至0.02MPa 時,泄水閥膜片之上下壓力差將不足以使彈簧保持原來的狀態,于是膜片在彈簧的作用下帶動閥瓣上移,泄水閥打開排水,防止水倒流。當進口壓力下降至0 或者負壓時,安全泄水閥會完全打開,空氣進入閥腔,閥腔內形成一定的空氣間隔,不會產生虹吸倒流,管道內的水停止流動。

低阻力倒流防止器的應用

                                                                                   圖1 正常工作狀態

  若一級止回閥泄漏,則其內部產生的壓差ΔP=P1-P2將不能使膜片上下產生足夠的壓差來壓縮彈簧,泄水閥膜片在彈簧作用下帶動閥瓣上移,泄水閥打開,并有連續間斷的水排出。浙江滄海閥門(http://www.vanwardgaa.com)認為由于二級止回閥倒流的高壓水已泄壓減壓,故不會倒流回一級止回閥。盡管如此,如果條件允許,建議應及時檢修閥門。

4、安裝使用

  4.1、工況條件

  低阻力倒流防止器裝置適用于清水或物理、化學性質類似清水且不允許介質倒流的管道系統中。

  (1) 由市政管網接入用戶的引入管在水表后面與閥門之間的管道上。

  (2) 利用室外給水管道的壓力進水的水箱,進水管與出水管合為一條的引入管上。

  (3) 給水系統采用水泵串聯分區供水方式時的水泵吸水管上。

  (4) 水加熱器的冷水進水管上。

  (5) 消防水泵接合器上引入管和消防水箱的消防出水管上。

  (6) 生產設備內部可能產生高于建筑物內給水管供水壓力的該設備的配水支管上。

  4.2、方法

  (1) 倒流防止器應按箭頭順水流方向安裝,不得逆向安裝。安全泄水閥的出口不得被水或雜物所淹沒。

  (2) 倒流防止器前后應設置控制閥門,用于關閉或開啟水流通道,以便于維修時更換倒流防止器。

  (3) 為測試及維修需要,排水器出口與空氣阻隔器之間安裝球閥,正常工作時,球閥處于開啟狀態。

  (4) 在總管上設置過濾器,用于去除管路中的雜物,以保證倒流防止器的正常工作。

  (5) 倒流防止器前(后) 建議設置伸縮節或可曲撓橡膠接頭,以便拆卸倒流防止器。

  4.3、位置

  (1) 自來水管網接入用戶的接戶管水表后面。

  (2) 生活用水管道上接出非生活飲用水和排污管,安裝于接出管起端。

  (3) 生活飲用水水箱的進水管上(水箱底部進水時) 。

  (4) 生活飲用水管道上串聯加壓泵時安裝于泵吸水管上。

  (5) 其他需要防止介質回流污染的管道上。

  4.4、調試

  (1) 正式安裝之前,應徹底沖洗上、下游給水管道。檢查倒流防止器閥組各組件之間的緊固螺栓是否有松動現象。發現異常,應重新緊固。但不得對倒流防止器閥體部件進行分解拆裝。

  (2) 倒流防止器應水平安裝,以方便調試和維修,并能及時發現水的泄放或故障的產生,安裝后倒流防止器的閥體不應承受管道的重量,并注意避免因低溫損壞和人為損壞。

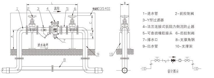
  (3) 倒流防止器兩端宜安裝維修用閘閥等截流閥門,進口前宜安裝過濾器,而且至少應有一端裝有伸縮節或可曲撓橡膠接頭(圖2) 。如果條件允許,在過濾器前后加裝壓力表,以便觀察過濾器的水頭損失。據此確定有無必要清除過濾器內的異物。另外,對于只在緊急情況下才使用的管路(例如消防系統管道),應考慮過濾器的網眼被雜質堵塞而引起緊急情況下供水中斷的可能性。

                                                                                 圖2 倒流防止器及其配套裝置安裝

  (4) 倒流防止器通常不設置在水泵房。如條件限制需把倒流防止器設置在泵房內,除了考慮排水管道和安全排水泵的大小外,還需設置遭遇水淹時報警裝置。

  (5) 倒流防止器端部連接為法蘭型,閥門安裝時要注意對稱均勻地擰緊螺栓。閥門法蘭與管子法蘭必須平行,間隙合理,以免閥門產生過大壓力,甚至開裂。倒流防止器端部連接為絲口型,閥門安裝時應將密封填料包裹在管子螺紋上,不要存積在閥內,影響介質流通。倒流防止器端部連接為卡箍型,閥門安裝時應注意卡箍密封圈要位于接口中間位置,閥門及管道溝槽與卡箍凸起密合到位,對稱均勻地擰緊螺栓。

  (6) 泄水閥的排水口不應直接與排水管道固定連接,而應通過漏水斗排放到地面上的排水溝,漏水斗下端面與地面距離不應小于300mm。

  (7) 倒流防止器閥組安裝完畢后,需進行調試。

  ①將倒流防止器閥組前、后控制閥關閉。

 ?、诰徛_啟閥組前控制器,并打開倒流防止器閥體上部測試球閥,排除閥腔內的空氣,讓水流逐漸充滿倒流防止器閥腔。

 ?、坳P閉排氣球閥,緩慢開啟閥組后控制閥,使水流逐漸充滿閥組后部管路系統。

 ?、荛_啟閥組后部管道上的配水龍頭,觀察能否正常出水,并檢查倒流防止器排水閥是否呈正常關閉狀態。

 ?、蓐P閉閥組后控制閥或閥組后部管道上的配水龍頭,觀察倒流防止器排水閥是否呈正常關閉狀態。

 ?、揸P閉閥組前控制閥,打開倒流防止器中間腔測試球閥和閥組后控制閥,使出口端水壓高于中間腔水壓,觀察倒流防止器排水閥是否泄水,檢查出水止回閥的密封性能。

  在調試過程中,控制閥開啟或關閉時,泄水閥有少量水排出屬正?,F象。如果出現泄水閥連續排水,閥組后部配水管網斷流等異常情況,應及時中斷調試,并通知供應商派技術人員到場處理。

  4.5、維護

  倒流防止器維修周期長,工作可靠且為水力自動控制。因此在注意避免人為損壞或低溫損壞等情況下,無需頻繁精細地維護與保養。若進口介質因供水工況而產生壓力波動,泄水閥出現少量滴漏水屬正?,F象。但當發現其存在周期性或在不應泄漏工況持續不斷的泄漏時,需要及時檢修。檢修時應注意避免進水止回閥、出水止回閥與泄水閥的零部件(尤其彈簧) 的混淆調換。

5、結語

  隨著生活水平的不斷提高,人們對供水水質要求勢必也越來越高。因此,建議在生活給水管網上選用倒流防止器特別是低阻力倒流防止器代替傳統的止回閥,以更好地保障人們生活飲用水的衛生與安全。


您有閥門設備需求?即刻聯系我們吧!聯系我們